什么是檐高?檐高如何确定?
相信大家对檐高不陌生,因为檐高和设防烈度能够确定抗震等级,抗震等级最终会影响钢筋的计算结果。那什么是檐高呢?檐高又如何确定呢?
檐高,顾名思义,檐口的高度
所以檐高就是指室外地坪至屋面的檐口(最低点)或屋面现浇板顶(凸出屋面的水箱间、电梯间、亭台楼阁不计算檐高)的高度 。

在北京2012定额中,是这么规定檐高的
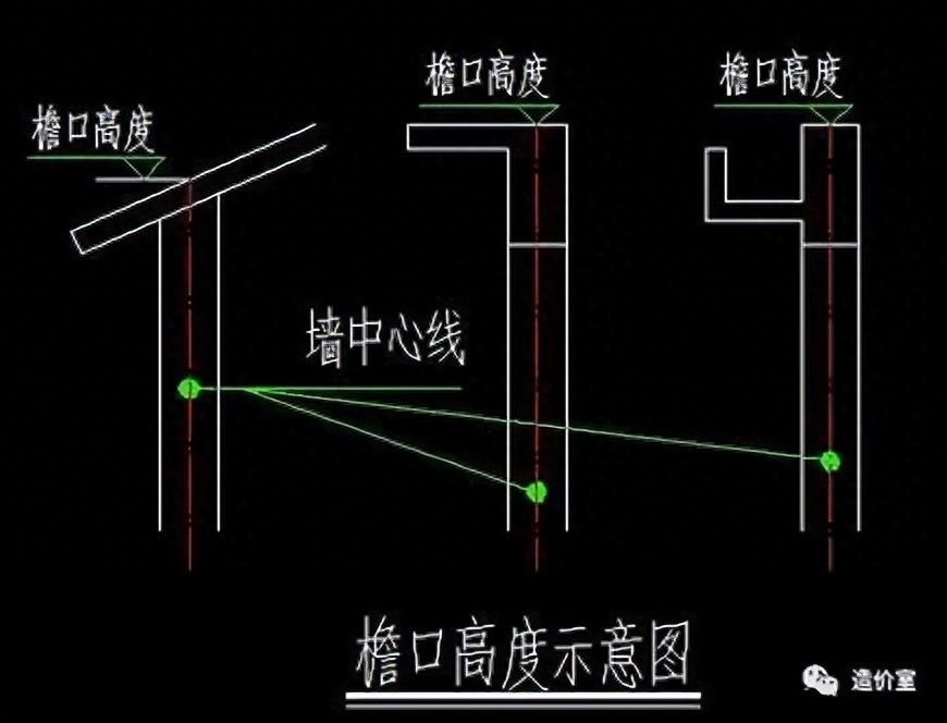
(一)平屋顶带挑檐者,算至挑檐板下皮标高;
1、外挑檐沟的,按檐沟底标高到室外地坪为准,有多个外檐沟的,按不同高度区别,同一位置有多层檐沟的,按高的为准;

2、没有外檐沟只有内檐沟的,按内檐沟底到室外地坪为准;

3、没有檐沟的按屋面滴水部位为准(如伸出外墙的平、斜挑檐)
(二)平屋顶带女儿墙者,算至屋顶结构板上皮标高;
(三)坡屋面或其它曲面屋顶均算至墙的中心线与屋面板交点的高度;

(四)阶梯式建筑物按高层的建筑物计算檐高;
(五)突出屋面的水箱间、电梯间、楼梯间、亭台楼阁等均不计算檐高。


标签:
146
芬兰总理称可供乌克兰大黄蜂战机,总统、防长公开唱反调 俄乌战争僵持不下,乌克兰连月来促请国际提供先进武器,助其抵御和反击俄罗斯。 芬兰总理马林(Sanna Marin)日前向传媒表...
119
巴基兽进化鲸鱼兽,说出来你可能不信,鲸鱼的祖先长得竟像一条狗 世界的起源神秘而悠远,人类的历史对于地球来说犹如白驹过隙,无论是人际偏远乃至荒无人烟之处,还是市井之间...
143
京剧的四大流派 梅派 创始人梅兰芳(1894-1961),演青衣,兼演刀旦。对京剧旦角的唱腔、念白、舞蹈、音乐、服装等各方面有所创造发展,形成了自己的艺术风格,影响...
114
BIGBANG《if you》最新幽默中文版音译歌词 《if you》 姑娘嘎多那尬呦 那弄那么孤独哎俗啊不俗呦 洒拉你都那尬呦 那弄怕不虬龙猛啊你所以内忧 魔多技能苦读莫死妈能罢打不打 恰跟球迷...
122
杨紫杨子二人是父女?辟谣后又被爆出是干爹! 杨紫杨子二人,不知道的网友或许看到这两个名字都有可能认为二人一定有着某种亲戚关系,其中最离谱的就是网上传出的二人是父女关...
63
爆何炅一直不谈恋爱,网传他是个同性恋?何老师发言辟谣 作为一名著名的娱乐节目主持人,何炅专业能力和口碑都是得到广大网友支持与认可的,自从他主持娱乐节目以来,何炅几乎...
87
卓伟从爆料人转为辟谣者,黄晓明古力娜扎二人绯闻被卓伟辟谣 作为中国第一狗仔的卓伟,可以说是娱乐圈明星最为讨厌的一个人了,但凡有什么大料的曝光基本上都少不了卓伟,但是...
194
李云龙的岳父田墨轩到底多厉害?一细节告诉你答案 在《亮剑》中,有很多厉害的人物,像李云龙、楚云飞、丁伟以及赵刚等人我们暂且不提,今天我们说一位隐藏的高手,那就是李云...
60
李晨范冰冰深夜约会被拍,疑似复合女方回男方家! 据网上知情人士爆料称,范冰冰与李晨分手几年后二人如今复合了,此事曝出登上微博的热搜榜第一名,据悉范冰冰在因为阴阳合同...
133
抖音祝晓晗和大纯是父女吗 视频中虽然父女情深但现实却不是 祝晓晗的视频都是讲述的父女故事的,所以很多的网友都以为两人是父女,那么抖音祝晓晗和大纯是父女吗?其实不是哦...
165
坂井泉水:低调、没有绯闻、不化妆却让人大爱的泉水姐姐 坂井泉水:低调、没有绯闻、不化妆却让人大爱的泉水姐姐 不知道有多少人喜欢听日语歌曲,但是想信喜欢听日语歌曲的人...
149
小米和荣耀的AI跑分之争:这差距,也太大了吧 9月8日,小米总裁林斌发博称,五个月前发布的小米6 X完胜9月5日刚刚发布的荣耀8 X,消息一出引起轩然大波。数据证明,小米在前置相机...
107
可爱蜡笔小新头像 收走~ 可爱蜡笔小新头像 收走~ 可爱蜡笔小新头像 收走~ 可爱蜡笔小新头像 收走~ 可爱蜡笔小新头像 收走~ 可爱蜡笔小新头像 收走~ 可爱蜡笔小新头像 收走~ 可爱蜡笔...
158
泫雅舞台上掀裙子 大尺度举动惊呆众人掀裙走光画面令人膛目 9月20日,韩国女星泫雅又登上热搜,泫雅舞台上掀裙子露内裤行为遭到不少人热议,泫雅舞台上大尺度举动惊呆众人掀裙...
132
成都捷普电子厂怎么样?招聘要求有哪些? 成都捷普电子厂位于四川省成都市崇州市经济开发区创新路三段一号,总部设于美国佛罗里达州,上市于纽约证券中心。 2013年财政年度收入...
176
女生说我彩虹屁什么意思(女生说男生彩虹屁是夸奖吗) 彩虹屁男朋友是什么梗?彩虹屁男朋友是什么意思?很多小伙伴们都还不知道,下面就和小编一起来看看吧。 彩虹屁男朋友是什么...
70
空中玻璃走廊美国,芝加哥观光层美国 “空中玻璃走廊”坐落于美国科罗拉多大峡谷西侧的一个印第安部落居留地内,距赌城拉斯维加斯大约200公里,悬空于科罗拉多河1219米之上,向...
149
杨春霞逝世时间 杨春霞没有去世,仍健在。杨春霞是当代著名的京剧表演艺术家,目前年近八旬,仍在为京剧的传播奔波,深受国人敬重。她在京剧样板戏《杜鹃山》中塑造的党代表“...
126
佩戴绿幽灵的功效与好处 绿幽灵又被称为绿色幻影水晶,因为在其生长过程包含了不同颜色的火山泥等矿物质,又因为绿幽灵的绿很是神秘、幽静,所以很容易引人遐想,还因为 绿幽...
175
战斗机超音速巡航有什么实战意义? 现在,在谈及第五代战机的时候,总会提到一个重要的指标,那就是超音速巡航。可在我们的常识里面,现在是个战斗机都能超音速,那为何还要超...