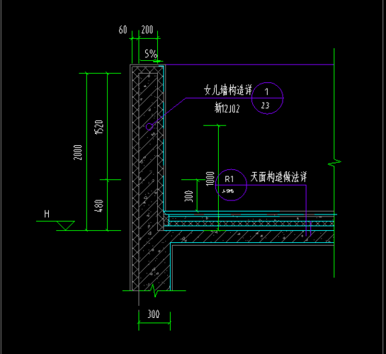
女儿墙是什么(它的作用是什么)
女儿墙(又名:孙女墙)是建筑物屋顶四周围的矮墙,主要作用除维护安全外,亦会在底处施作防水压砖收头,以避免防水层渗水、或是屋顶雨水漫流依国家建筑规范规定,上人屋面女儿墙高度一般不得低于1.1m,最高不得大于1.5m,下面我们就来聊聊关于女儿墙是什么?接下来我们就一起去了解一下吧!

女儿墙是什么
女儿墙(又名:孙女墙)是建筑物屋顶四周围的矮墙,主要作用除维护安全外,亦会在底处施作防水压砖收头,以避免防水层渗水、或是屋顶雨水漫流。依国家建筑规范规定,上人屋面女儿墙高度一般不得低于1.1m,最高不得大于1.5m。
上人屋顶的女儿墙的作用是保护人员的安全,并对建筑立面起装饰作用。不上人屋顶的女儿墙的作用除立面装饰作用外,还固定油毡。
女儿墙是一个建筑专业术语,又名压檐墙是屋面与外墙衔接处理的一种方式,作为屋顶上的栏杆或房屋外形处理的一种措施,可防止人员掉落,也可起到屋面防水的作用。
女儿墙的作用是保护人员的安全,并对建筑立面起装饰作用。不上人的女儿墙的作用除立面装饰作用外,还固定油毡或固定防水卷材用。
标签:
137
路由器怎么改密码 无线路由器成为每个家庭必备之物,它为我们的智能手机、平板电脑、智能家居等设备提供WiFi连接。不过,在设置无线路由器时大部分人会忽略了两个密码的重要性...
153
南山古茗和古茗一样嘛 南山古茗和古茗是不一样的,古茗是一家在台州创立多年的茶饮品牌;南山古茗是在上海创立的茶饮品牌。古茗奶茶口感香醇,性价比很高,并且古茗奶茶旗下,...
142
哈密瓜的功效 哈密瓜是热性还是凉性 具体功效如何? 首先,哈密瓜是属于凉性水果。据中医学认为,甜瓜类的果品基本性质是属于偏寒的。 随着夏天的临近,有一些地方可能已经达到...
95
玉米油与葵花籽油区别在哪 玉米油与葵花籽油区别是什么 玉米油和葵花籽油在营养成分和食用方式方面略有差别,玉米油的油酸含量较高营养价值也更高,适合煎炒或凉拌等方式。但...
158
又是一年三月三风筝飞满天是什么歌(歌词又是一年三月三风筝飞满天是哪首歌) 这句歌词出自于李谷一的《三月三》,搜集在1982年云南音像出版社为李谷一出版的专辑《我的小路》...
150
贵州重要的山脉有(贵州境内的四大山脉有哪些) 贵州重要的山脉有:大娄山:位于贵州省北部,平均海拔在1500米左右。苗岭:位于贵州省东南面,这一地区平均海拔在1500米左右。武...
104
繁星春水赏析感悟(读《繁星·春水》有感) 《繁星·春水》是冰心奶奶写的诗集,也是我最喜欢的一本诗集。这本诗集的独特之处就在于它那短小轻灵的文字形式,而最重要的就是这...
195
MAC是什么缩写(mac是什么名称的缩写) MAC(Macintosh)区别于装配有微软Windows系统的苹果电脑(PC),苹果电脑因装配自家的Mac OS系统,而被称为MAC。Mac是指苹果公司推出的个人系列电脑产品...
209
怎样检测是不是纯钛水杯(怎样鉴别纯钛水杯) 简便的方法就是:把开水倒入水杯里面使用杯盖或者瓶塞盖紧后,过5分钟左右,用手触摸杯身,如果杯身有明显的温热现象,说明产品...
72
天降大任于斯人也什么意思 “天降大任于斯人也”它的意思是天将要降落重大责任在这样的人身上。出自《孟子·告子下》或《生于忧患,死于安乐》选自《孟子》(战国)。全文后面...
150
适量运动是指运动时的心率范围控制在(运动时心率控制在什么范围内是适宜运动 ) 适量运动运动时的心率控制范围和个人的运动强度有直接的关系,运动强度不同,心率也是不同的...
115
高粱米包粽子好吃吗?怎么用高粱米包粽子? 高粱米属于粗粮,富含粗蛋白质、粗纤维、脂肪、碳水化合物以及多种微量元素,具有和胃、健脾、消积等功效,马上就要到端午了,想要...
130
带比自己度数低的眼镜有影响吗 带比自己度数低的眼镜不利于眼睛健康,因为佩戴不合适的眼镜眼睛很容易疲劳,还有斜视、弱视、度数加深的可能,眼镜一般都是根据佩戴者当时的各...
166
玉麒麟用什么肥料 一、用什么肥料 玉麒麟并不属于喜肥的植物,在平时适当施肥就行。一般,可以给它施加完全腐熟之后的矾肥水,能够让植株的叶片更加具有观赏性。一定不要使用...
141
行李箱锁扣坏了能修吗怎么修 行李箱锁按扣断了能修么 行李箱锁扣坏了能修,一般的零件损坏都可以通过更换零件维修,找专业的工作人员处理就可以了。平时使用行李箱的时候要保...
132
怎么钓螃蟹的方法 杆钓法是常见的钓螃蟹的方法之一,指的是竹竿顶头绑一根绳子,绳子另一头帮青蛙肉或其它饵料,将饵料抛入水中等待螃蟹拉直绳子,之后用抄网迅速捞起螃蟹即可...
91
微信群如何艾特所有人 不是群主个人可以@全体成员吗? 微信群要怎么艾特所有人呢?很多人在群里通知事情的时候想提醒大家看,这时候就要@所有人,可是却不知道要怎么操作,今天...
130
套路女朋友的段子,盘点那些毁三观的骗红包套路 情人节刚刚过去不久 有对象的、没对象的 都收到红包了吗 根据微信情人节红包数据统计 男性发520红包的数量是女性的3.5倍 女性收...
197
染发剂放在热空调房可以嘛 一般来说染发剂是不能放在空调房里的,由于它里面含有化学物质,如果受热后会容易出现变色的现象,但可以在空调房里染发,而不用局部加热,这样能有...
122
彩玉是玉石吗 彩玉怎么样 大多数彩玉是镁硅酸盐的材质,也有的是二氧化硅的材质,其中以石林彩玉最为出名,硬度高,具有很高的收藏价值。那么问题来了,我们都知道一些色彩绚...